Workspaces

Neurological Center

Healthcare facility

Image

Project Details

Construction Type:

Expansion and Renovation

Area:

9,000 SF (4,000 SF added)

Year:

2008

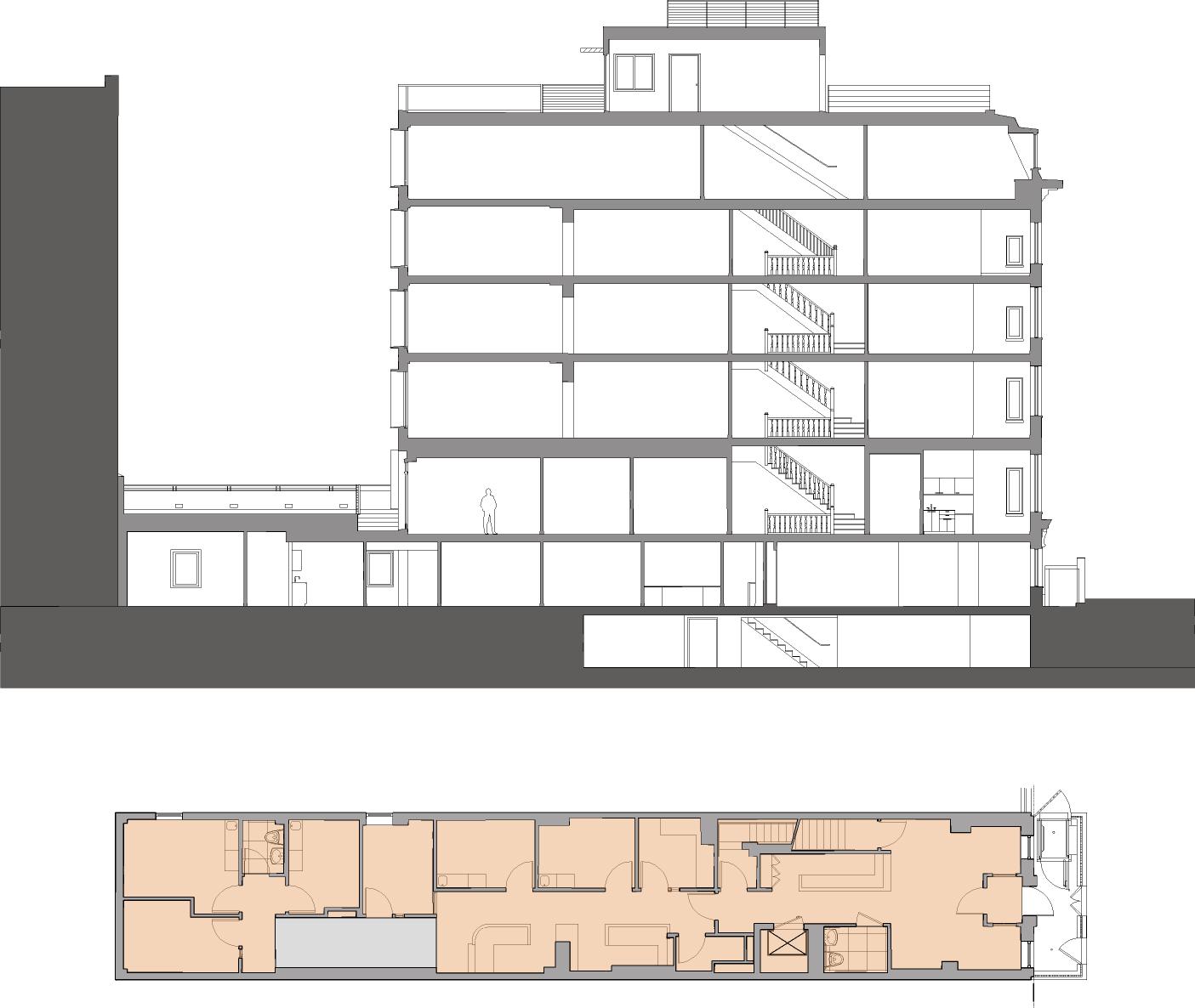
An existing townhouse on the Upper East Side a block away from Lenox Hill Hospital was converted into a neurology focused healthcare facility. Two stories were added above and a full six-story addition at the rear gave this 5,300sf townhouse an additional 4,000sf of usable space for the medical facilities. A copper clad exterior relates to dormers found on historic buildings across the street. Rectangular openings with varying mullion rhythms permit flexible partitioning of interiors and provide the South-facing rear façade with an opportunity to transform during varying solar conditions. Standing seam joints enliven the rear terrace area for patients and medical professionals who enjoy the landscaped area. The rear addition covered the full lot and the ground floor interiors are washed by skylights that permit natural light to interior primary client areas.

Caramelized bamboo areas designate primary interaction points between patients and staff, through wrapping surfaces that contrast carpeted common areas. Consultation rooms and examination rooms complete the program and are carefully designed with materials and colors complementing other palette components.

Each floor is occupied by a related specializations such as Audiology, Neurosurgery and Physical therapy offering clients multiple sources for their medical needs. Our team’s architecture responds to the Owner’s plan by organizing the many floors with each practice’s specific needs, while addressing functional expectations, maximizing natural light and providing contemporary interiors.